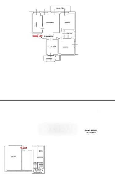
Appartamento in vendita Via Privata Giovanni Meli 18, Milano
Salva
Casa.it
1/40
  • Street View
  • Map