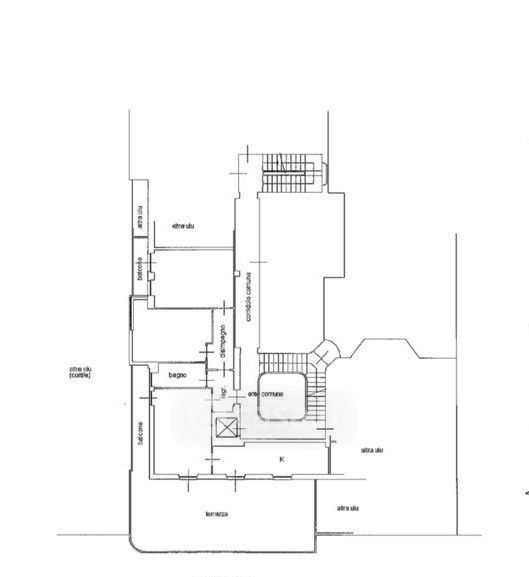
Appartamento in affitto Via Fra Bartolomeo 9, Milano
Salva
Casa.it
1/53
  • Street View
  • Map