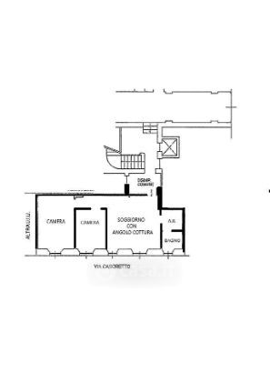
Appartamento in vendita Via Alfredo Catalani 68, Milano
Salva
Casa.it
1/15
  • Street View
  • Map