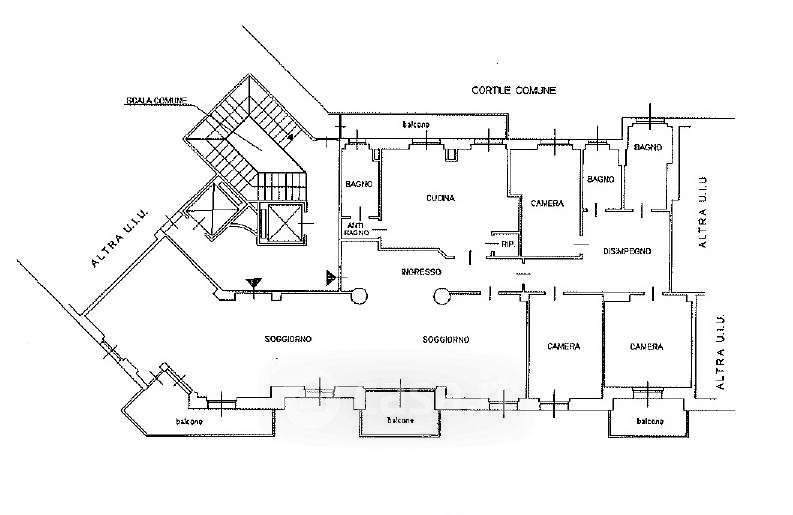
Appartamento in vendita Via Filippino Lippi , Milano
Salva
Casa.it
1/45
  • Street View
  • Map