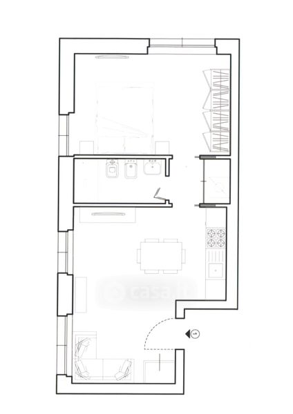
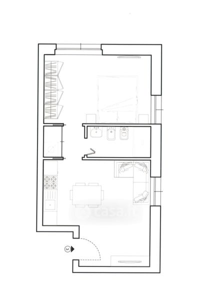
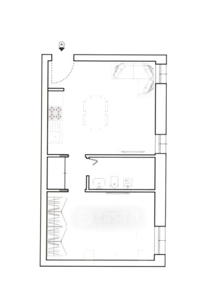
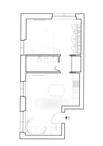
Appartamento in vendita Via Capri 6, Milano
Salva
Casa.it
1/36
  • Street View
  • Map