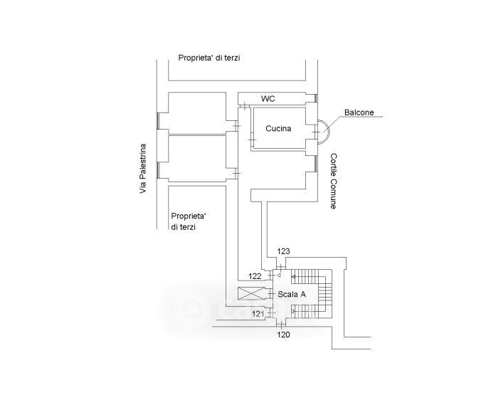
Appartamento in vendita Via Giovanni Pierluigi da Palestrina 18, Milano
Salva
Casa.it
1/32
  • Street View
  • Map