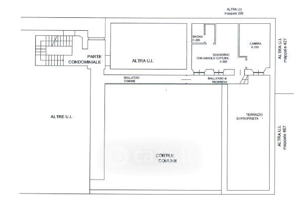
Appartamento in affitto Via Pietro di Pietramellara 8, Milano
Salva
Casa.it
1/39
  • Street View
  • Map