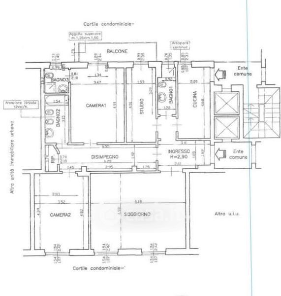
Appartamento in affitto Via Giovanni Pierluigi da Palestrina 2, Milano
Salva
Casa.it
1/22
  • Street View
  • Map