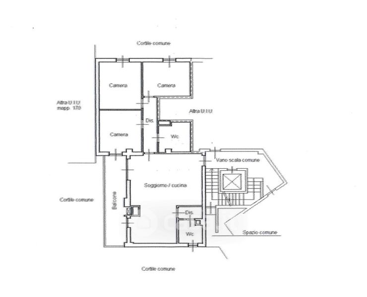
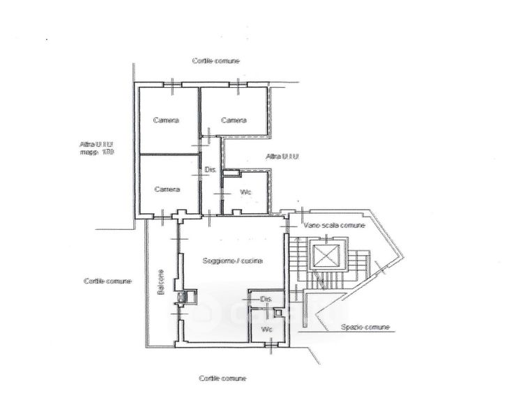
Appartamento in vendita Via Francesco Gonin 65, Milano
Salva
Casa.it
1/59
  • Street View
  • Map