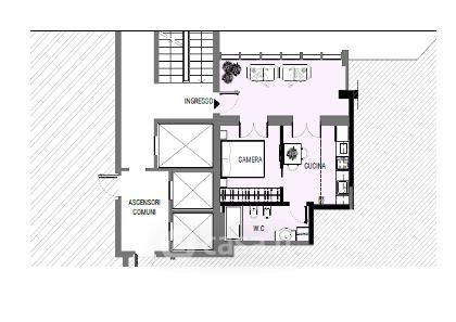
Appartamento in affitto Via Ippodromo 56, Milano
Salva
Casa.it
1/22
  • Street View
  • Map