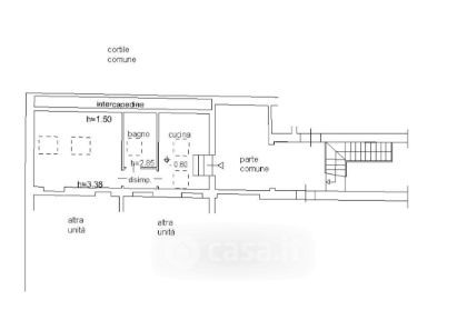
Appartamento in vendita Via Privata Alberico da Barbiano 5, Milano
Salva
Casa.it
1/22
  • Street View
  • Map