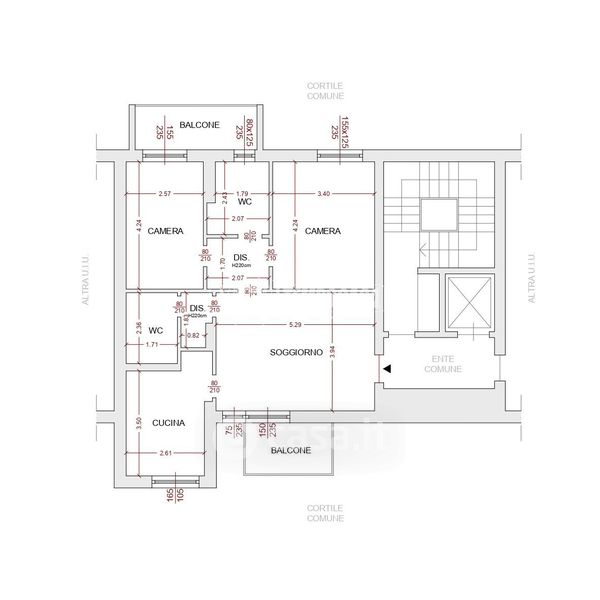
Appartamento in vendita Via Ugo Mulas 4, Milano
Salva
Casa.it
1/20
  • Street View
  • Map