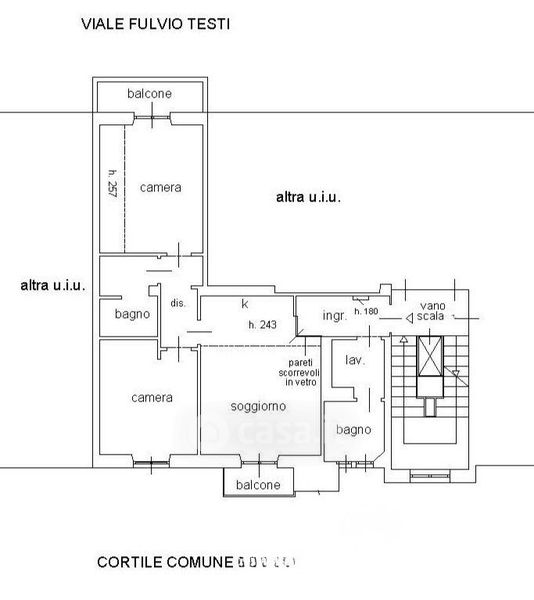
Appartamento in affitto Viale Fulvio Testi 76, Milano
Salva
Casa.it
1/39
  • Street View
  • Map