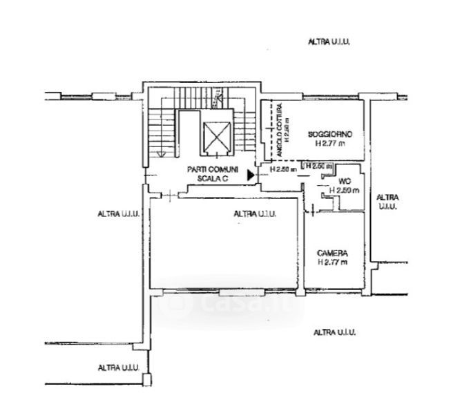
Appartamento in affitto Via Gargano 21, Milano
Salva
Casa.it
1/29
  • Street View
  • Map