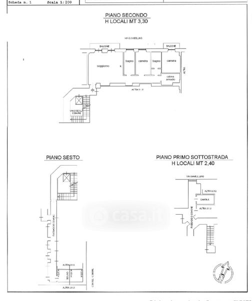
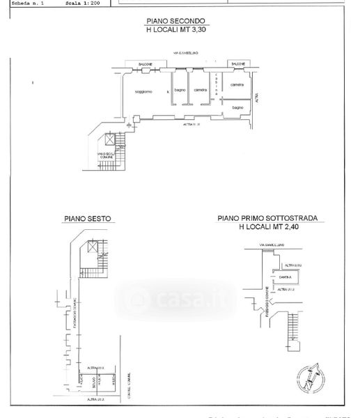
Appartamento in vendita Via Massimo Gorki 1, Milano
Salva
Casa.it
1/25
  • Street View
  • Map