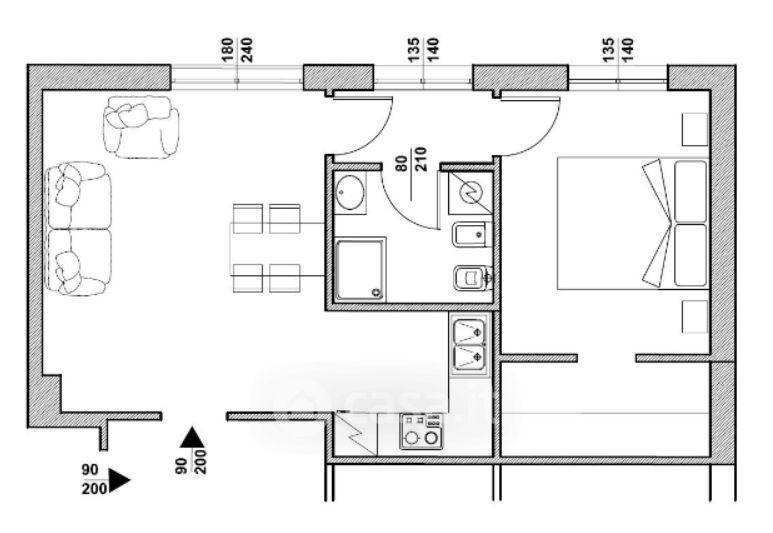
Appartamento in affitto Via Camillo Giussani 24, Milano
Salva
Casa.it
1/20
  • Street View
  • Map