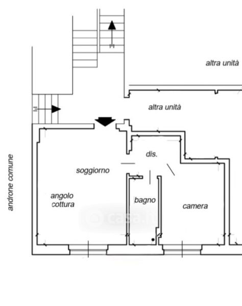
Appartamento in vendita Via Modica 20, Milano
Salva
Casa.it
1/11
  • Street View
  • Map