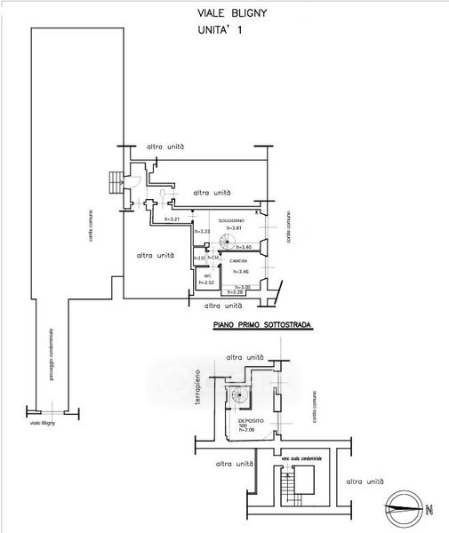
Appartamento in vendita Viale Bligny , Milano
Salva
Casa.it
1/35
  • Street View
  • Map