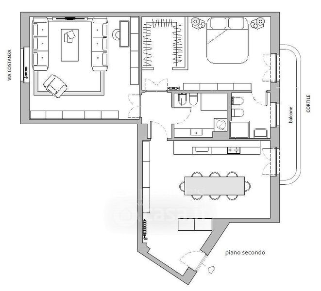
Appartamento in vendita Via Costanza 37, Milano
Salva
Casa.it
1/24
  • Street View
  • Map