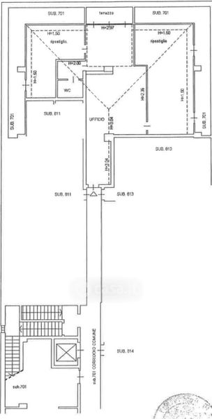
Appartamento in vendita Viale Enrico Forlanini 23, Milano
Salva
Casa.it
1/14
  • Street View
  • Map