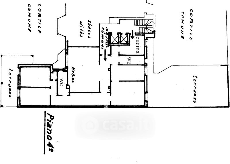
Appartamento in vendita Via Antonio Tantardini 15, Milano
Salva
Casa.it
1/29
  • Street View
  • Map