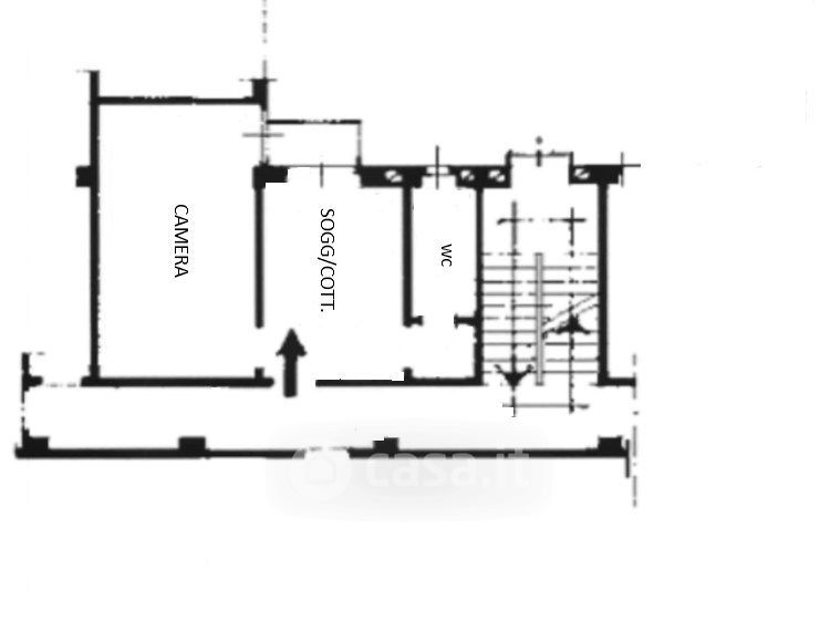
Appartamento in affitto Via Privata Iglesias 38, Milano
Salva
Casa.it
1/10
  • Street View
  • Map