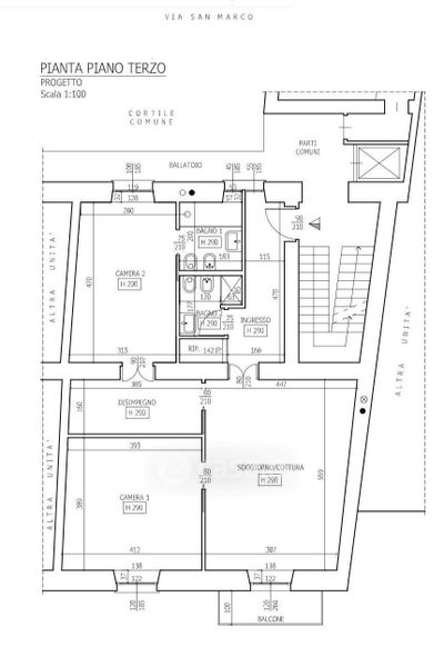
Appartamento in affitto Via San Marco , Milano
Salva
Casa.it
1/19
  • Street View
  • Map