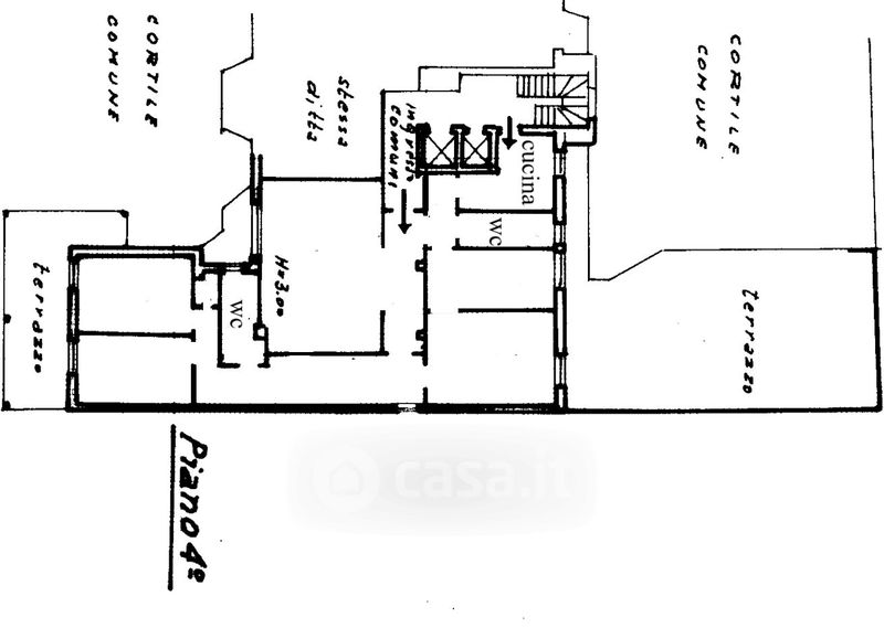
Appartamento in affitto Via Antonio Tantardini 15, Milano
Salva
Casa.it
1/25
  • Street View
  • Map