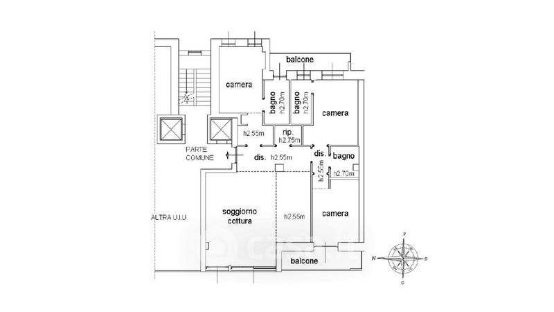
Appartamento in vendita Viale Severino Boezio 2, Milano
Salva
Casa.it
1/24
  • Street View
  • Map