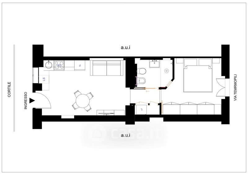
Appartamento in vendita Via Pietro Crespi 13, Milano
Salva
Casa.it
1/29
  • Street View
  • Map