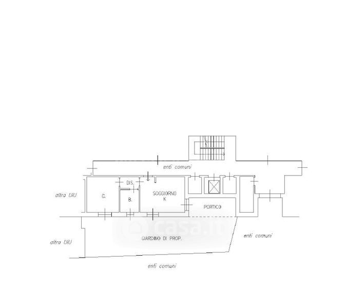
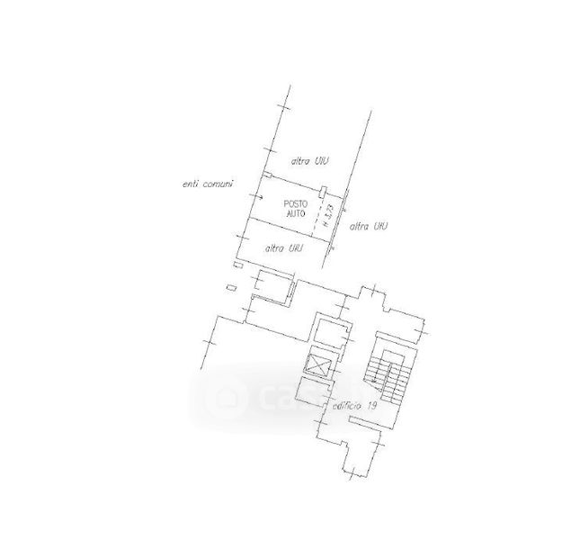
Appartamento in vendita Via Eugenio Colorni , Milano
Salva
Casa.it
1/27
  • Street View
  • Map