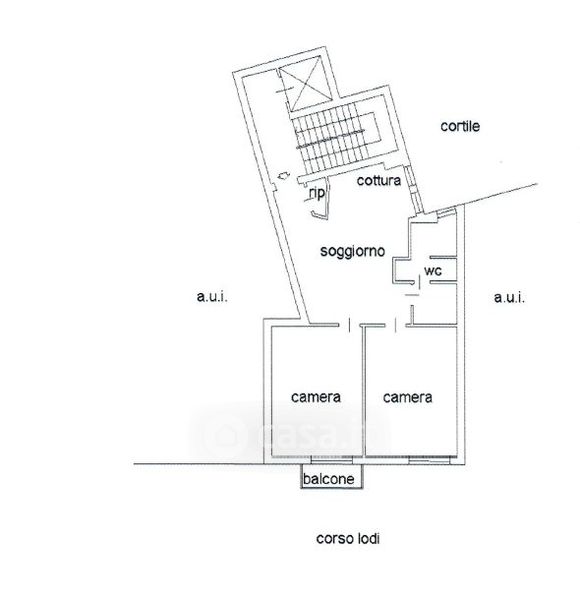
Appartamento in vendita Viale Bacchiglione , Milano
Salva
Casa.it
1/33
  • Street View
  • Map