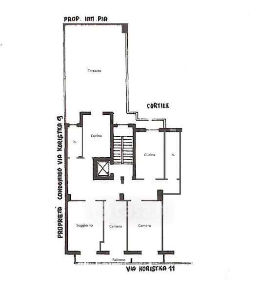
Appartamento in vendita Via Privata Francesco Koristka 11, Milano
Salva
Casa.it
1/38
  • Street View
  • Map