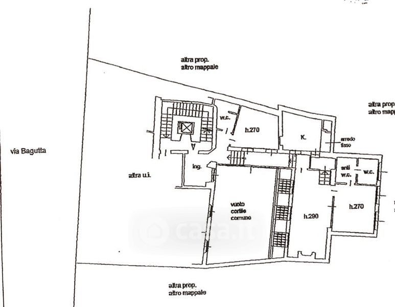
Appartamento in affitto Via Bagutta , Milano
Salva
Casa.it
1/12
  • Street View
  • Map