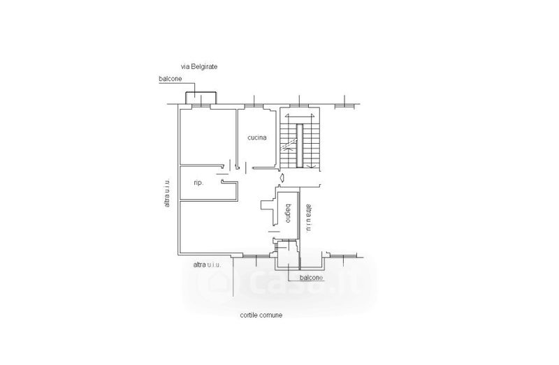
Appartamento in affitto Via Privata Belgirate 9, Milano
Salva
Casa.it
1/18
  • Street View
  • Map