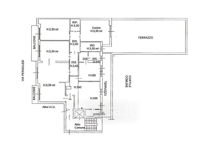
Appartamento in vendita Via Giovanni Battista Pergolesi 4, Milano
Salva
Casa.it
1/40
  • Street View
  • Map