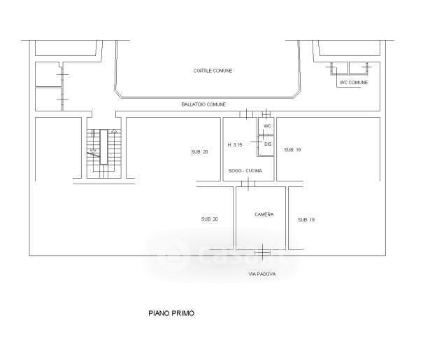
Appartamento in vendita Via Padova , Milano
Salva
Casa.it
1/20
  • Street View
  • Map