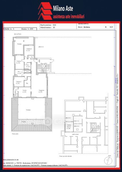
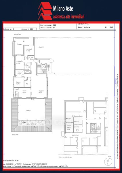
Appartamento in vendita Via Carlo Perini 20, Milano
Salva
Contatta l'inserzionista
Casa.it