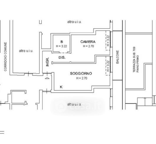
Appartamento in affitto Viale Certosa 24, Milano
Salva
Casa.it
1/12
  • Street View
  • Map