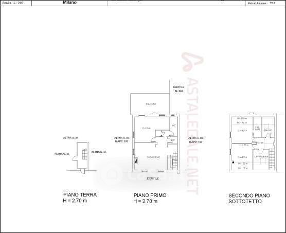
Appartamento in vendita Via Ambrogio Binda 42, Milano
Salva
Casa.it
1/17
  • Street View
  • Map