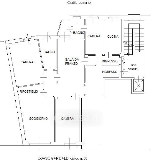
Appartamento in vendita Corso Garibaldi 65, Milano
Salva
Casa.it
1/31
  • Street View
  • Map