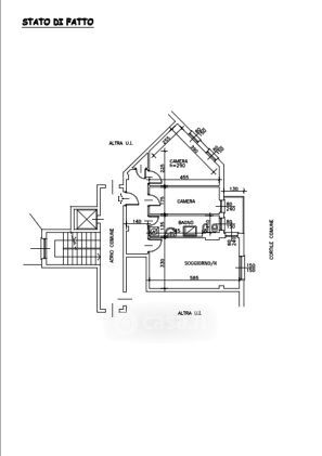
Appartamento in affitto Via Pellegrino Rossi 15, Milano
Salva
Casa.it
1/30
  • Street View
  • Map