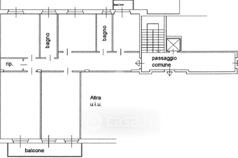
Appartamento in vendita Via Alfredo Cappellini 23, Milano
Salva
Casa.it
1/33
  • Street View
  • Map