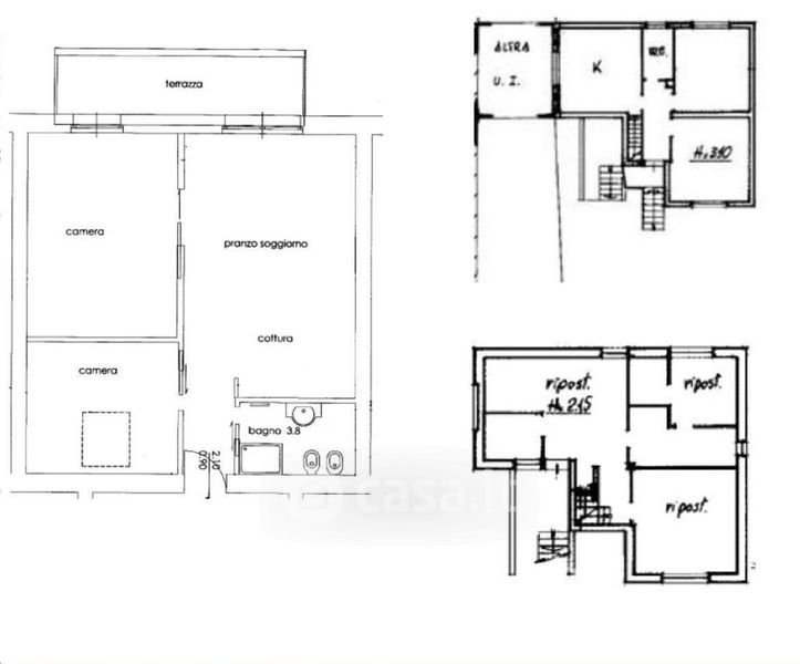
Appartamento in vendita Via Roma 27, Misano di Gera d'Adda
Salva
Casa.it
1/17
  • Street View
  • Map