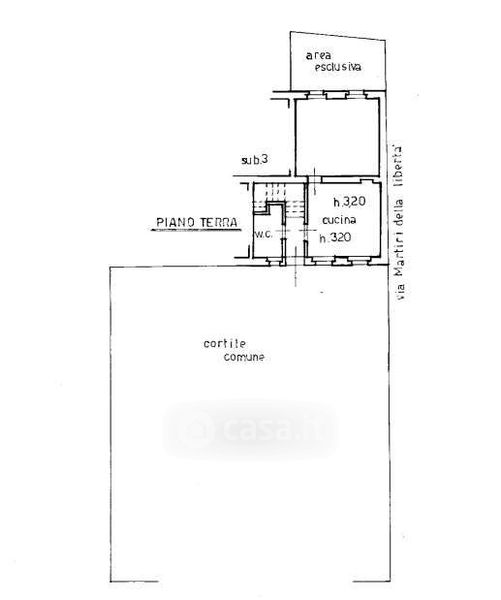
Appartamento in vendita Via Martiri della Libertà , Misano di Gera d'Adda
Salva
Casa.it
1/22
  • Street View
  • Map