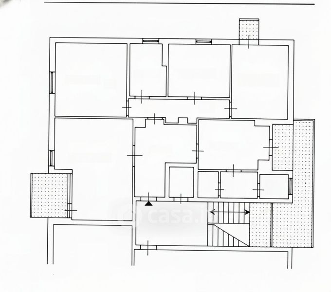
Appartamento in vendita Via Romagna 59 -57, Monza
Salva
Casa.it
1/20
  • Street View
  • Map