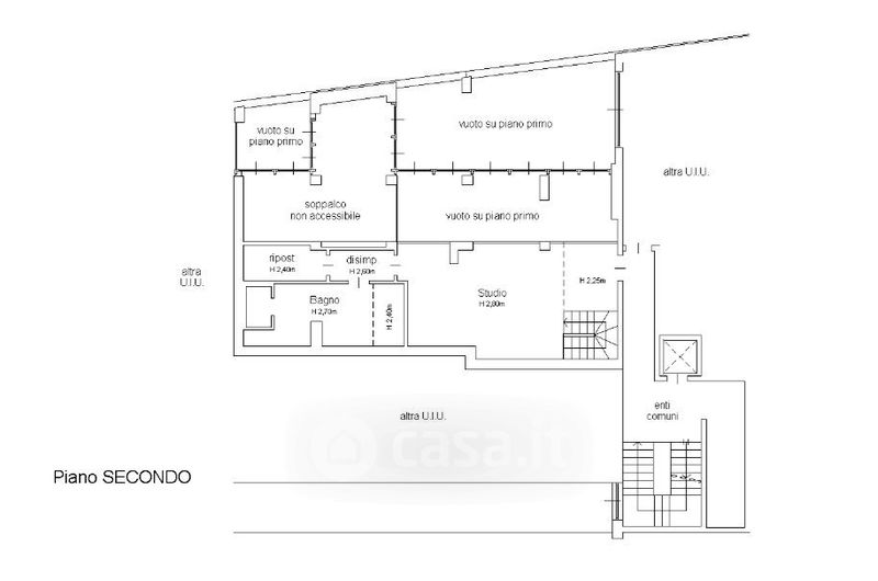
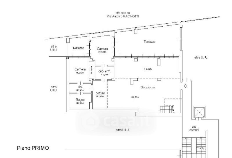
Appartamento in vendita Via Antonio Pacinotti 5 --/A, Monza
Salva
Casa.it
1/62
  • Street View
  • Map