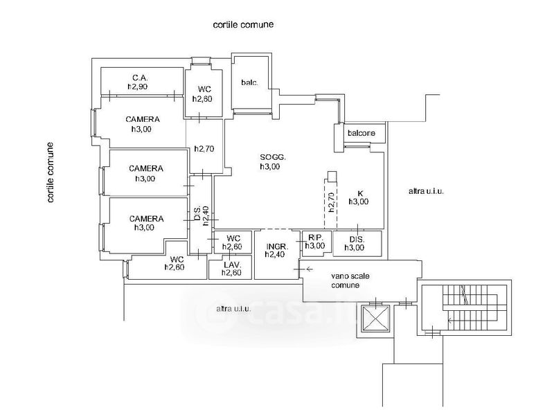
Appartamento in vendita Via Felice Cavallotti 153, Monza
Salva
Casa.it
1/44
  • Street View
  • Map