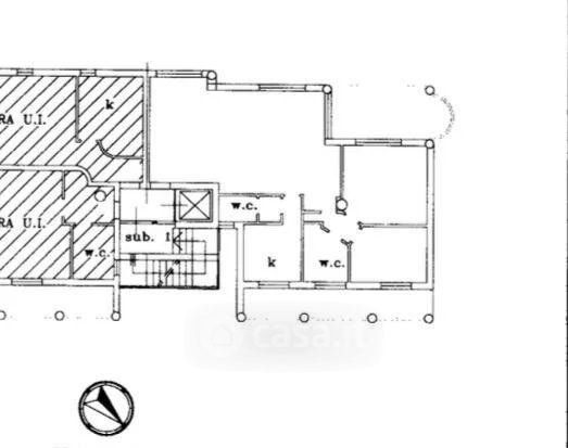
Appartamento in vendita Via San Gottardo 15, Monza
Salva
Casa.it
1/57
  • Street View
  • Map