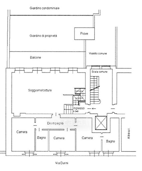
Appartamento in vendita Via Durini 19, Monza
Salva
Casa.it
1/51
  • Street View
  • Map