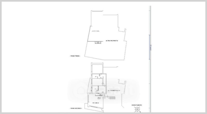
Appartamento in vendita Piazza Silvabella , Mortara
Salva
Casa.it
1/32
  • Street View
  • Map