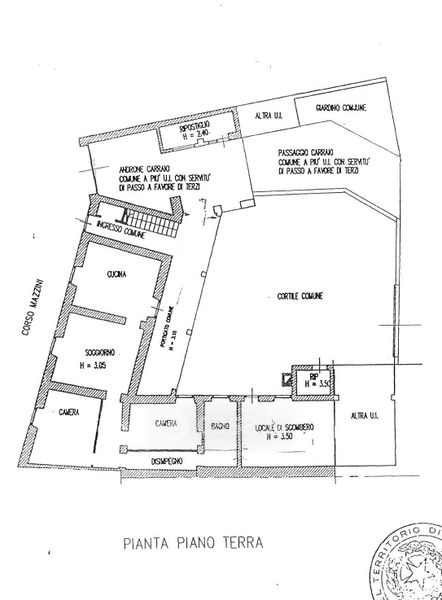
Appartamento in vendita Corso Giuseppe Mazzini , Mortara
Salva
Casa.it
1/27
  • Street View
  • Map