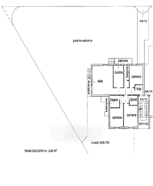
Appartamento in vendita Via Alessandro Manzoni , Mozzo
Salva
Casa.it
1/50
  • Street View
  • Map