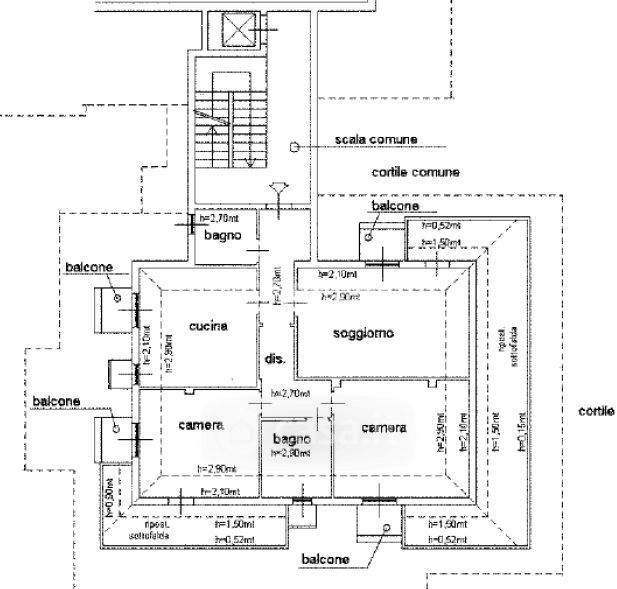
Appartamento in vendita Via San Francesco D'Assisi 60, Muggiò
Salva
Casa.it
1/27
  • Street View
  • Map